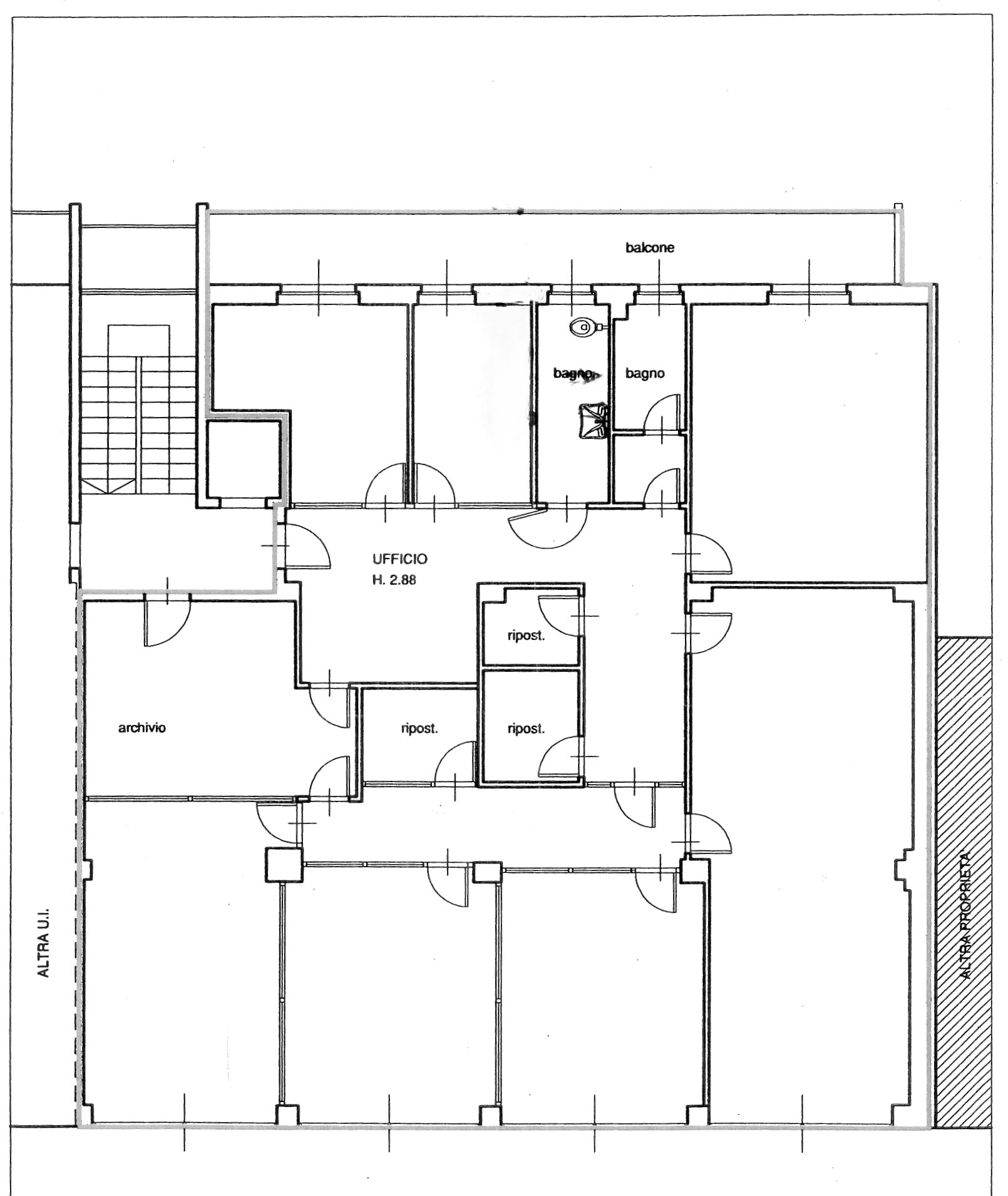
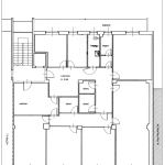
Varese – Ufficio in via Cesare Battisti
In elegante condominio nel cuore di Varese, proponiamo in vendita un ampio e luminoso ufficio di circa 270 mq, ideale per studi professionali, società o attività che desiderano una sede di rappresentanza in posizione strategica. L’immobile si trova in una zona centrale e ben servita, nelle immediate vicinanze di negozi, servizi e principali collegamenti. Gli spazi interni, ampi e ben distribuiti, sono caratterizzati da una notevole luminosità naturale grazie alle grandi finestre e possono essere facilmente adattati alle diverse esigenze lavorative. L’ufficio è dotato di riscaldamento centralizzato e impianto di aria condizionata, assicurando comfort in ogni stagione. I servizi igienici sono stati recentemente ristrutturati. Una soluzione di prestigio che coniuga funzionalità, rappresentanza e una posizione strategica.
In collaborazione con Studio Novelli.
Dettagli
Caratteristiche
Efficienza energetica
| A+ | A | B | C | D | E |
|
Classe energetica F
F
| G | H |


























